The Ridge Community

Design Consulting

Multi-Unit Residential

Vancouver, BC

Feasibility

Feasibility Study Design Consulting, Rendering

2023

Type:

Location:

Stage:

Role:

Year:

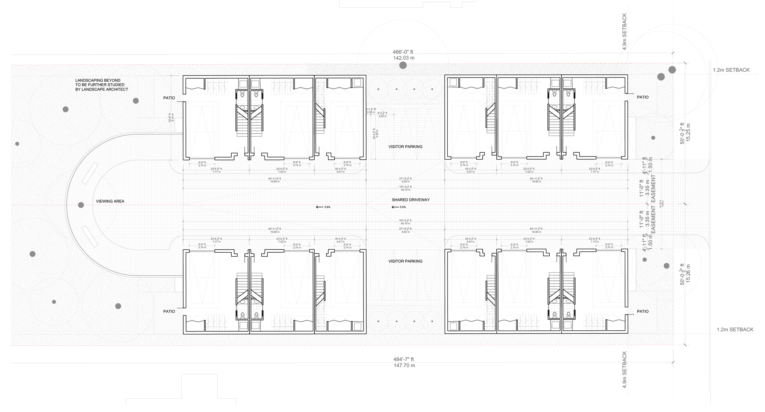
The Ridge Community is a study done on the novel R1-1 Zoning in Vancouver allowing 4+ units on any single family lot in Vancouver. The design process found its resolution by subdividing the lots to complete a community of luxury units overlooking the Fraser river valley.

Skupa partnered with Mara+Natha Architecture Ltd. to add an Architectural proposal for an Urbanics study on a lot in Vancouver.

Responding to local context, a Neo-Tudor style was proposed for the townhome typology.

The solidity of the ground level, and a cost-effective, and clear delineative facade design above. The use of honest, robust materials ensures longevity and aesthetic quality for generations.

In Partnership with

Mara+Natha Architecture Ltd.

In Collaboration with

Urbanics Consulting Ltd.

Previous
Previous

Timber Tower

Next
Next

Twelfth Street Condos